启东恒发润滑设备有限公司,欢迎广大新老客户来电来函咨询访问! 今天是:
干油润滑部分
稀油润滑部分
油气润滑部分
管接头管夹部分
SAE法兰部分
 
钢管用插入焊接式接头
● 接头
代号(订货号)
管子外径
D
D1
D0
H
H1
重量(kg)
ZT6.5.13-1
42
32
42.5
60
36
18
0.73
ZT6.5.13-2
48
38
48.5
70
41
20
0.92
ZT6.5.13-3
60
49
60.5
80
48
23
1.43
标记示例:接头42 ZT6.5.13-1
● 变径接头
代号(订货号)
管子外径(D0)
D
D1
D2
D3
L
L1
重量(kg)
ZT6.5.31-1
34×42
34.5
55
25
41
48
17
0.48
ZT6.5.31-2
42×48
42.5
60
32
48
52
18
0.54
ZT6.5.31-3
48×60
48.5
70
38
60
56
20
0.87
  标记示例:变径接头34×42 ZT6.5.31-1
● 接头 ZT6.5.33 重量0.58kg
● 三通
代号(订货号)
管子外径(D0)
D+0.4
+0.2
D1
D2
L
L1
L2
B
R
重量(kg)
对应号
ZT6.5.36-1
18
18.5
12
27
27
17
12
24
12
0.18
H1.12-1
T6.5.36-2
22
22.5
16
33
29
19
13
28
14
0.27
H1.12-2
ZT6.5.36-3
28
28.5
20
41
35
20
14
36
18
0.45
H1.12-3
ZT6.5.36-4
34
34.5
25
47
39
22
16
44
22
0.59
H1.12-4
ZT6.5.36-5
42
42.5
32
57
45
24
18
52
26
0.62
H1.12-5
ZT6.5.36-6
48
48.5
36
64
52
28
20
60
30
1.35
H1.12-6
ZT6.5.36-7
60
61
48
76
61
30
23
72
36
2.20
H1.12-7
  标记示例:三通18 ZT6.5.36-1
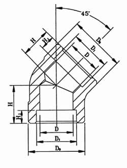
● 弯头
 
启东恒发润滑设备有限公司 地址:启东市汇龙镇工业园区跃龙路22号
电话:0513-83654611 83660611传真:0513-83654633 网址:www.qdhfrh.com E-mail:hf@qdhfrh.com