|
|
| |
KL型空气冷却器(0.63MPa) |
一、使用条件
KL型空气冷却器适用于水源不足或水质较差的现场,它利用内部流动的载冷剂通过冷却器表面吸收空气中的热量,使空气降温;也可以利用空气冷却内部工作介质,使工作介质降到要求的温度。
空气冷却器广泛应用于石油化工、冶金、矿山、电力、轻工机械等行业的液压润滑系统及冷却换热系统。空气冷却器采用空气为冷却介质,无污染,减少水的消耗,具有一般冷却器所没有的优点。
二、技术参数
|
|
换热面积m2 |
工作压力MPa |
工作温度℃ |
压力降MPa |
换热系数W/m2.K |
通径mm |
KL-100 |
100 |
0.63 |
≤100 |
≤0.01 |
50 |
95 |
KL-145 |
145 |
KL-230 |
230 |
70 |
KL-288 |
288 |
KL-350 |
350 |
KL-410 |
410 |
80 |
KL-454 |
454 |
KL-500 |
500 |
|
| 三、型号说明 |
|
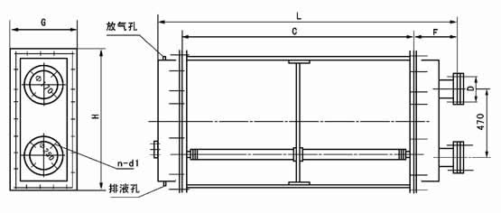
| 四、外形尺寸 |
|
浮头式空气冷却器 |
|
型号 |
A |
B |
C |
D |
E |
b |
f |
G |
H |
L |
L1 |
L2 |
n-d1 |
n-d2 |
d |
KL-100 |
|
|
1400 |
170 |
|
|
185 |
320 |
800 |
1680 |
|
|
4-Φ18 |
|
|
KL-145 |
|
|
2000 |
170 |
|
|
185 |
320 |
800 |
2280 |
|
|
4-Φ18 |
|
|
KL-230 |
150 |
250 |
1120 |
140 |
965 |
540 |
350 |
490 |
1358 |
1620 |
450 |
600 |
4-Φ19 |
|
65 |
KL-288 |
150 |
250 |
1400 |
140 |
825 |
450 |
350 |
490 |
1358 |
1850 |
450 |
600 |
4-Φ19 |
4-Φ14 |
65 |
KL-350 |
150 |
250 |
1700 |
140 |
95 |
600 |
350 |
490 |
1358 |
2150 |
450 |
600 |
4-Φ19 |
4-Φ14 |
65 |
KL-410 |
150 |
250 |
2025 |
150 |
1135 |
740 |
350 |
490 |
1358 |
2475 |
450 |
600 |
4-Φ19 |
4-Φ14 |
65 |
KL-454 |
150 |
250 |
2245 |
150 |
1245 |
850 |
350 |
490 |
1358 |
2685 |
450 |
600 |
4-Φ18 |
4-Φ14 |
|
KL-500 |
150 |
250 |
2465 |
150 |
1355 |
960 |
350 |
490 |
1358 |
2915 |
450 |
600 |
4-Φ18 |
4-Φ14 |
60 |
|
|
|