启东恒发润滑设备有限公司,欢迎广大新老客户来电来函咨询访问! 今天是:
干油润滑部分
稀油润滑部分
油气润滑部分
管接头管夹部分
SAE法兰部分
 
HB-P系列电动润滑泵及装置(40MPa)

一、使用条件
HB-P系列电动润滑泵适用于润滑点多、分布范围广、给油频率高、公称压力为40(20MPa)的单、双线干(稀)油集中润滑系统中,作为供送润滑剂的装置,还可配备移动小车、胶管、油枪及电缆组成移动式电动润滑泵装置以便用于给油频率低,润滑点少,给油量大且不便于采用集中润滑的单机设备,进行移动给油,贮油桶还设有油位自动报警装置,如配以相应的电气控制箱还可实现自动控制,并对系统进行监视。

二、技术参数

型 号
公称压力MPa
额定流量mL/min
贮油器容积L
电机功率kW
适用电源V
重 量kg
HB-P200Z
40(20)
200
60
1.1
380
280
HB-P400Z
400
60、100
328
HB-P800Z
800
100
2.2
405

使用介质为锥入度不低于220(25℃,150g)1/10mm的润滑脂(NLGI0#~3#)和粘度等级不小于N68的润滑油。

三、型号说明
 
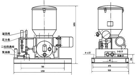
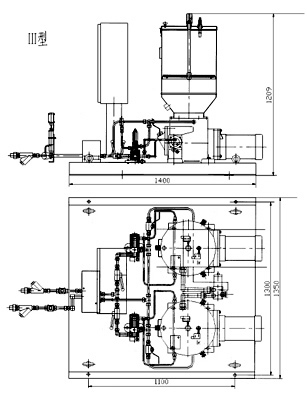
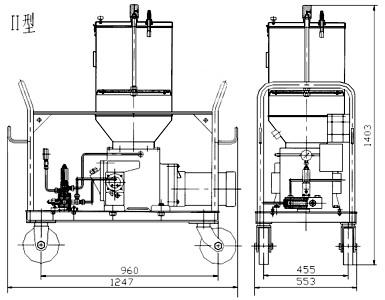
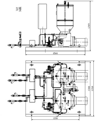
四、外形尺寸
 
 
 

五、使用说明
1、润滑泵应垂直安装和固定在便于维修和灰尘较少的地方,并注意环境温度是否适合泵的工作温度范围-20℃~+65℃。
2、泵尽可能安装在润滑系统中心位置,缩短系统配管长度,保持最低压力降,以保证泵产生足以克服润滑点背压的压力。
3、电动机须按顺时针方向旋转。
4、必须使用干净的润滑脂,因为含有杂质的润滑剂往往是泵和系统产生故障的主要原因。向 贮油筒内补充润滑剂必须使用电动加油泵从电动润滑泵补脂口加入。泵在首次充填润滑脂前,最好先加些润滑油,因为润滑油流动性好,会充满所有的部位,有利于排除空气。如有的润滑部位不能使用润滑油,那么泵必须运转至无空气存在的润滑脂到达管道末端为止。
5、泵使用前必须向减速箱内加注50#机械油到油标规定位置。
6、管道,特别是从给油器到润滑点的管道及被润滑部位的轴承都要事先充满润滑油,然后再进行安装。
7、该系列电动润滑泵为室内安装型,在室外或环境恶劣的场合使用时,必须采取防护措施。

六、订货注意
1、订货HB-P系列电动润滑带小车装置,必须在合同中注明所配胶管长度及电缆长度。不注明的按胶管5米供货。
2、用户如有其它特殊要求及说明应在合同中注明,本公司代为设计制造。

   
启东恒发润滑设备有限公司 地址:启东市汇龙镇工业园区跃龙路22号
电话:0513-83654611 83660611传真:0513-83654633 网址:www.qdhfrh.com E-mail:hf@qdhfrh.com